5
4
3553
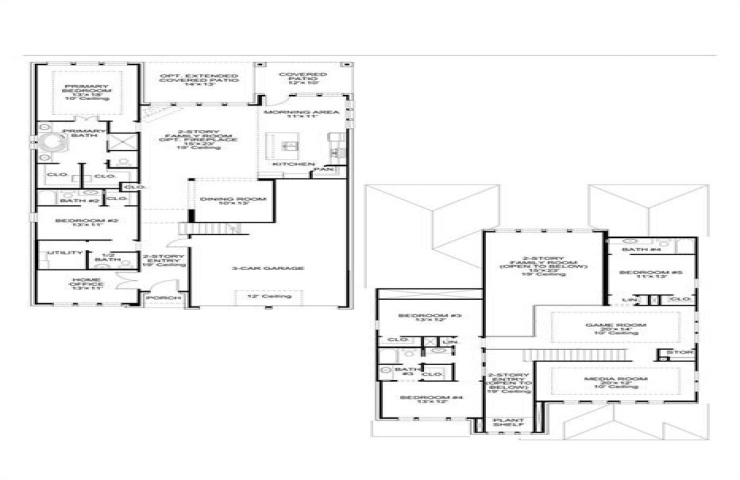
Property Description: Home office with double doors framing the entry. The two-story entry extends past the dining room to the kitchen and family room. Island kitchen offers built-in seating space, a 5-burner gas cooktop, and a corner walk-in pantry. Formal dining room. Two-story family room with 19-foot ceiling and a wall of windows and a wood mantel fireplace. Hardwood flooring throughout main living area. Morning area just off the kitchen offers a beautiful view of the backyard. Primary suite with three large windows. Primary bathroom features a French door entry, dual vanities, a freestanding tub, separate glass enclosed shower and two walk-in closets. Guest suite with a full bathroom and a walk-in closet on first level. Second floor hosts a large game room, media room, an additional guest suite and secondary bedrooms with a Hollywood bathroom. Additional storage space, half bathroom, linen closet and a utility room completes this generous design. Extended covered backyard patio. Three-car garage.