4
2
1572
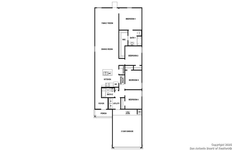
Property Description: The Estero is a charming one-story home featured in Avenida in Converse, TX. Featuring 4 classic front exteriors, this 4 bedroom, 2 bathroom home also offers 1586 square feet of living space and a 2-car garage. A front porch (per plan) welcomes you into the home and opens to the gourmet kitchen which includes quartz counter tops, shaker style cabinets, stainless steel appliances and an open concept floorplan with the kitchen flowing seamlessly into the dining room and living room. The main bedroom has an attractive ensuite bathroom that features a quartz vanity countertop, shaker style cabinetry and a spacious tiled walk-in shower. Enjoy additional storage with a large walk-in closet in the primary bedroom. Your secondary bedrooms all feature quality carpet flooring and a closet, and can be used as bedrooms, offices, work out spaces or other bonus rooms. The possibilities are endless with The Estero floor plan. Additional features include sheet vinyl flooring in entry, living room, and all wet areas, quartz counter tops in all bathrooms and HOME IS CONNECTED base package. Using one central hub that talks to all the devices in your home, you can control the lights, thermostat and locks, all from your cellular device.