4
3
2500
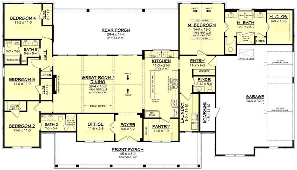
Property Description: This stunning proposed Laramie Plan spans 2500 sqft & features a striking exterior with paint board & batten design, complemented by a brick accent & solid cedar-stained columns. Inside, includes 4 bed 3 full bathrooms, along with a convenient half bath & a dedicated office on 2 acres. Take advantage of NO PAYMENTS while you build with Zeal Home Builders! This home includes high-end features such as split bedrooms, large porches, custom cabinetry, Delta faucets, decorative mirrors, wall-mounted TV outlets, hardline ethernet ports, & spray foam insulation. Step into a vaulted great room that provides beautiful views of the rear porch, while the adjoining dining room allows easy access to outdoor spaces. Culinary enthusiasts will love the well-appointed kitchen, complete with a large center island for additional eat-in space, double ovens, & a huge pantry, & all the modern amenities a home chef could desire. The owner’s suite is a luxurious retreat, boasting vaulted ceilings, natural light, & a large walk-in closets. The ensuite bath is designed for relaxation, featuring dual vanities, a separate tub, & a spacious walk-in shower. Two additional bedrooms share a well-appointed hall bath with dual vanities and a tiled tub shower. 1 of 4 bedrooms includes an attached full-bath. The back porch is an entertainer's paradise, ask about upgrades to include outdoor kitchen or fireplace. Home has 3-phase inspected & a comes with 1-2-10 3rd Party Warranty for your peace of mind. Nestled in the charming town of Granbury, this property offers the best of rural living—NO city taxes, NO water bill, & NO HOA fees. Enjoy the peaceful country lifestyle just minutes from downtown Granbury Square & only a 15-minute drive to Lake Granbury Marina. Plus, you have the exciting opportunity to personalize your new home with your choice of colors, countertops, flooring, fixtures, & more. Txt keyword ZHB33 to 88000 for builder details. Directions & lot map at www.zhb.homes