4
2
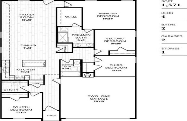
1571
Property Description: MLS# 21148266 - Built by Dunhill Homes - Ready Now! ~ This stunning new construction home in Labein Villas exemplifies modern living with traditional charm. Boasting 1,571 square feet, this single-family residence features 4 spacious primary bedrooms and 2 full bathrooms, ideal for families or those seeking extra space. The open floorplan seamlessly connects the eat-in kitchen—complete with granite counters, a kitchen island, and a pantry—to the inviting living area, creating an ideal space for gatherings. Enjoy the luxury of a double vanity and walk-in closets in the bedrooms. Additional highlights include a 2-car garage, central heating and cooling, and elegant flooring options. Located in the highly regarded Greenville ISD, this home is a perfect blend of comfort and convenience, ready for you to make it your own.