4
4
4101
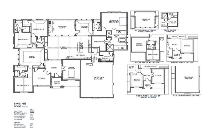
Property Description: Luxurious single-story home, corner property on a 1.0-acre lot in Plano ISD! Four Bedrooms, Flex room off the Master Bedroom, Formal Dining, Formal Study, Four Car Garage, Extended Covered Patio, Upgraded Kitchen Appliances, Extensive Nail-Down Oak Flooring. Absolutely Beautiful!!