4
3
2926
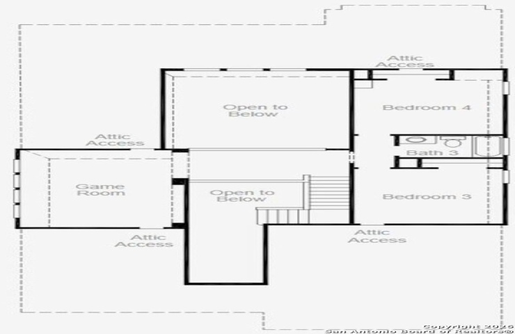
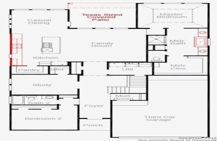
Property Description: Welcome to 176 Desert Bloom a beautifully crafted new construction home located in the new and highly desirable Nopal Valley community. Enjoy everyday convenience with close proximity to the brand new H E B at Highway 211 and Culebra. The Dumont floor plan offers a striking blend of elegance and functionality designed for modern Texas living. Inside, soaring 20 foot ceilings create a bright and open atmosphere, while the wrought iron staircase serves as a dramatic architectural focal point. The spacious open concept layout is ideal for both everyday comfort and effortless entertaining. The exterior showcases four side brick with refined stucco accents delivering timeless curb appeal. Step outside to a Texas sized covered patio perfect for relaxing evenings and memorable outdoor gatherings. Nopal Valley residents will enjoy future community amenities including a resort style pool all set against the scenic backdrop of the Texas Hill Country. This home offers refined design thoughtful details and an exceptional Hill Country lifestyle opportunity.