4
2
2235
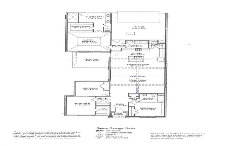
Property Description: This home is just starting, so there is time for the buyer to be able to select interior finishes if one can act quickly. Top notch finishes in this one story, four bedroom home with fourth bedroom also available to be used for a study if only three are needed. Covered side patio and lovely open floor plan with 14 foot vaulted ceiling throughout the main areas. Owner's suite at rear of home with vaulted ceiling, as well, and lovely dual vanity ensuite bath with soaking tub and separate shower. Huge walk in closet and near the separate utility space, as well. Secondary bedrooms are completely separate from the owner's and feature tons of natural light and ample space to relax. Wood floors and top of the line appliances with custom cabinetry abound. One of the most sought after plans in Walsh, our one story Bradley is a delight for those wishing to live in a well-designed, thoughtful, light filled floor plan perfect for downsizing or beginning a life together. Beautiful architecture, close to all the amenities Walsh offers including two pools, multiple parks and walking spaces, Maker's Space, basketball and pickleball courts, a gourmet market, fire pits, picnic areas, and dog park to mention just a few. Walsh is simply a wonderful neighborhood to land in, so call today to talk about making this Aledo ISD home yours.