4
3
2599
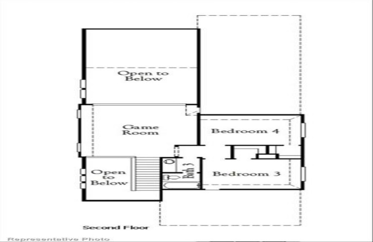
Property Description: MLS# 21106596 - Built by Coventry Homes - April 2026 Completion! ~ Come see this amazing two-story, 4:3 home with a huge game room loft and private theater! This home has everything you could want from a stylish and contemporary façade, to a massive kitchen island. It also has both a tub and shower in the primary bath. built-in ovens in the gourmet kitchen and two bedrooms conveniently located on the first floor! This is truly a must-see!