4
4
3893
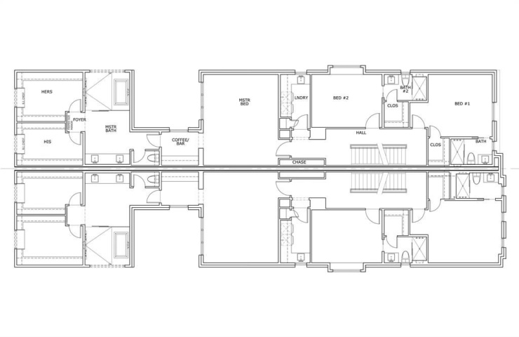
Property Description: New construction completion scheduled for spring 2026. With a soft contemporary style and open living & dining spaces, this home lives much larger than its 3893 sq. ft. The 1st floor hosts your main living & dining areas with a large open kitchen-family room, fireplace, powder bath, mudroom and attached 2 car garage at the rear. A courtyard with composite decking provides a wonderful place to enjoy the outdoors along with side yard with synthetic grass. The 2nd floor features the primary owner’s suite with luxury bath & dual closets, along with two additional bedroom suites and the utility room. The 3rd floor holds the 4th bedroom suite which could also be used as a game room. Wonderful location that is walking distance to HPMS, SMU and many UP Parks. Just West of Hillcrest on Asbury.