3
2
1571
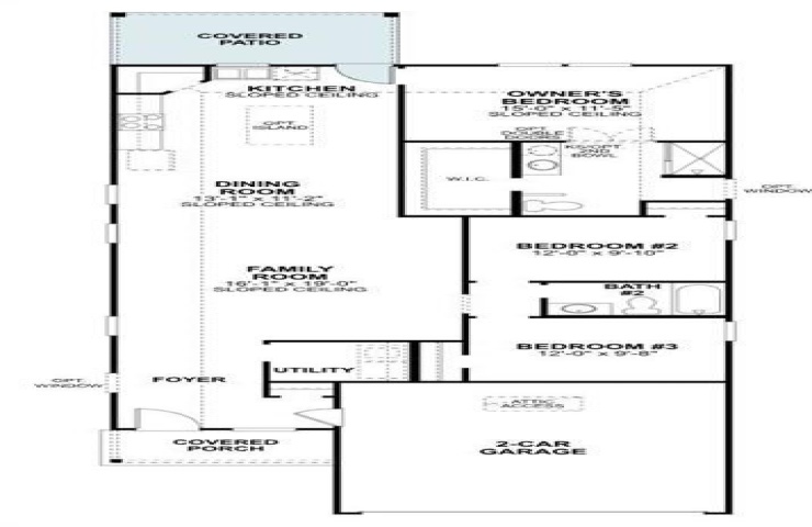
Property Description: Built by M-I Homes. Discover this thoughtfully designed new construction home at 7018 Butterfield Drive in Sanger, Texas. This gorgeous 3-bedroom, 2-bathroom single-story home offers spacious amount of interior living space. Luxury vinyl plank flooring leads you into the expansive family room, which is perfect for entertaining. The open-concept kitchen comes equipped with a stunning island and stainless steel appliances, while the dining nook leads to a back patio. Your owner's bedroom is in a private corner and comes complete with an en-suite bathroom and a large walk-in closet. The additional bedrooms offer flexibility for family, guests, or home office use. As a new construction property, it includes contemporary finishes and builder warranty protection, ensuring move-in ready convenience and long-term value. Schedule your visit today!