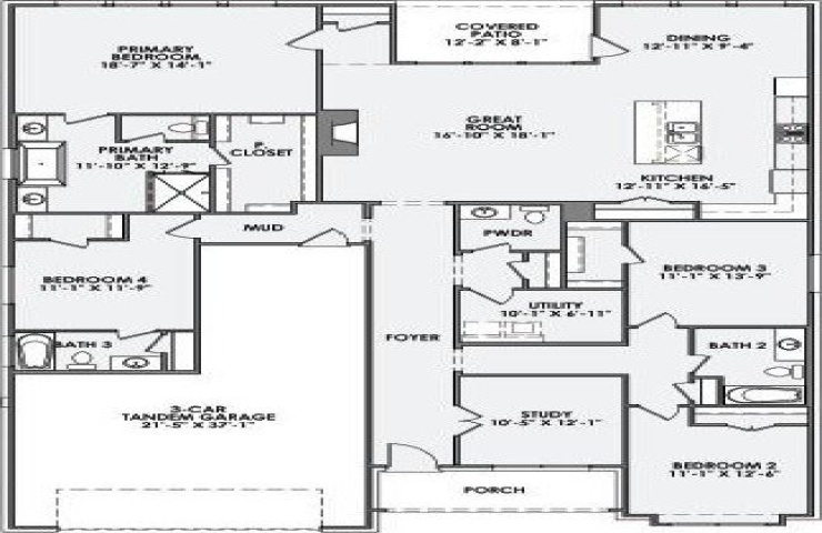
Property Description: This 2,630-square-foot home features 4 spacious bedrooms, 3 car tandem garages and a warm, family-friendly design. An open layout brings the kitchen, dining, and living areas together, creating the perfect space for gatherings, while private bedrooms offer comfort and room to grow.