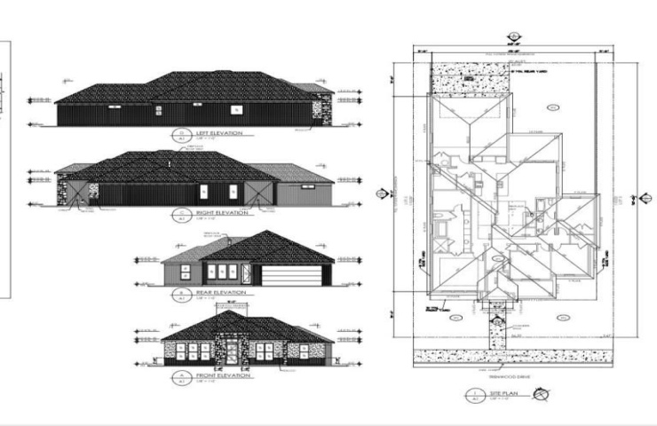
Property Description: *TO BE BUILT* A 4 bed 2 bath new construction home in the beautiful sought after Pavilion Park in Midland TX. Call your favorite agent to view this floor plan and meet the builders. Buyers will be able to choose floors, countertops and finishes.