5
3
3150
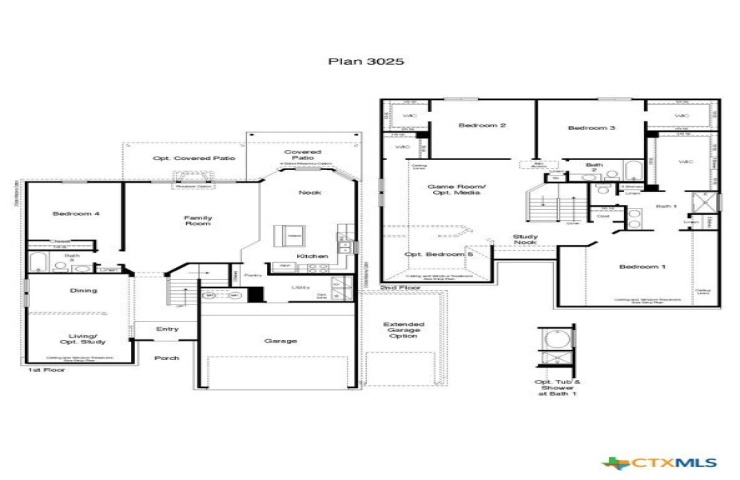
Property Description: Welcome to the Kiawa plan, a beautiful two-story floor plan in our Turnbo Ranch Traditons community in Killeen, Texas. This 4-5 bedroom, 3-bath plan has the perfect amount of space at approximately 3,150 sq. ft. and a 2-car garage. Enjoy the first floor as you walk into the entry to the dining area and the living area that can be opted for a study. Walking further in you will come to the family room and kitchen area, as well as a secondary bedroom with easy access to the secondary bathroom. You can find the laundry room next to the garage, that is easily accessed from the kitchen. The kitchen also features flat panel birch cabinets and granite countertops, with decorative tile backsplash. Find time to enjoy nature from the two option covered patios that is connected to the nook. Heading upstairs, you'll find two secondary bedrooms with an option of adding another bedroom. With easy access to a secondary bathroom, and game-room that can be opted for a media room. Retreat to the primary bedroom that has an attached bathroom with a walk-in shower that has an option for a tub and shower, and a spacious walk-in closet. Like with all our homes, you'll never be too far from home with our smart home technology thoughtfully designed into every detail. Find security and control through the Qolsys panel, your phone, or voice. Contact us today to learn more about the Kiawa floorplan!