3
2
2202
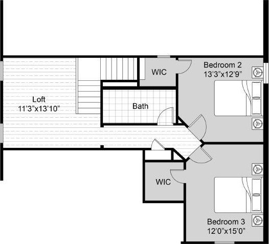
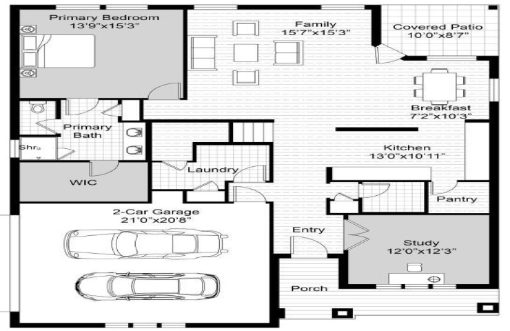
Property Description: MLS# 21134630 - Built by Doug Parr Homes - Jul 2026 completion! ~ Experience modern living in this proposed single-family residence situated in the desirable Ranches at Valley View. This stylish home boasts 3 spacious bedrooms and 3 bathrooms, including 2 full and 1 half-bath. The open floorplan seamlessly integrates the living and dining areas, enhanced by decorative lighting and elegant granite countertops in the eat-in kitchen featuring a convenient island and pantry. Relax by the electric fireplace or step outside to the covered patio, perfect for outdoor gatherings. Additional highlights include a 2-car garage, walk-in closets, and a combination of carpet, tile, and vinyl flooring. Located within the Springtown ISD, this home offers easy access to schools and nearby amenities, all on an expansive lot. Enjoy comfort with central heating and cooling systems, making this residence an ideal family haven.