3
2
2091
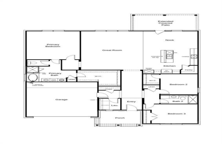
Property Description: Discover a modern home featuring an open floor plan filled with natural light from whole-house vinyl windows. Enjoy convenience with rocker switches throughout and a smart Kwikset entry door. This gourmet kitchen with gas cooktop boasts stainless steel Whirlpool smart appliances, breakfast bar, decorative backsplash, silestone countertops, and an upgraded touchless faucet. Relax in the primary bath with an extended vanity, quartz countertops, separate tub and tile-surrounded shower, elongated toilets, and Moen fixtures. Outdoors, unwind on the front porch or the extended covered patio with full house gutters. Additional perks include USB charging ports in key areas and a smart thermostat for ultimate comfort.