4
3
3161
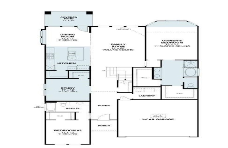
Property Description: Built by M-I Homes. Discover this beautifully designed home at 1308 Silver Grass Meadow in Celina, Texas. With a thoughtful layout across two levels and generous living spaces, it delivers comfort, style, and everyday convenience. Key Features: • 4 bedrooms with the owner's bedroom on the main level • 3 full bathrooms plus a half bathroom • Open concept layout connecting the kitchen, dining, and family areas • Modern interior finishes throughout • Front-loading 2 car garage The floorplan maximizes both privacy and usability with the owner's bedroom tucked away on the main level. Upstairs bedrooms offer flexibility for guests, family, or work needs. Natural light fills the shared living areas, creating an inviting setting for gatherings and everyday routines. The Celina location places you near parks, community amenities, and local conveniences while still enjoying a peaceful suburban setting. It is an ideal blend of accessibility and quiet neighborhood charm. Schedule a visit today!