Property Description: Built by M-I Homes. Welcome to 2613 Grapevine Way in Celina, TX, a beautifully designed two-story home offering 4 bedrooms, 3 full bathrooms, and 1 half bath—providing the space and flexibility to fit a variety of lifestyles.
The first floor is centered around an open-concept layout where the gourmet kitchen, dining area, and family room connect effortlessly, creating a welcoming space for everyday living and entertaining. The kitchen offers generous counter space and a functional layout that keeps you connected to the heart of the home.
A private study near the front of the home adds versatility and works perfectly as a home office or quiet retreat. A first-floor secondary bedroom and full bath offer a convenient option for guests.
The owner’s suite is privately located on the main level, featuring a spacious bedroom, walk-in closet, and a deluxe en-suite bath designed for comfort and relaxation. An extended covered patio off the main living area expands your space outdoors, ideal for enjoying quiet evenings or hosting friends.
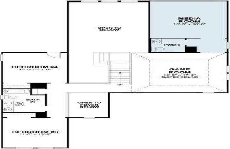
Upstairs, additional bedrooms are complemented by a central game room that serves as a natural gathering space. A separate media room with a nearby powder bath creates the perfect setup for movie nights or game-day entertaining, while open-to-below views add architectural interest and enhance the home’s open feel.
With its thoughtful layout, flexible living spaces, and balance of shared and private areas, this Quick Move-In home offers a comfortable, well-rounded lifestyle in the Lilybrooke at Legacy Hills community.
Schedule a visit today!