4
2
2627
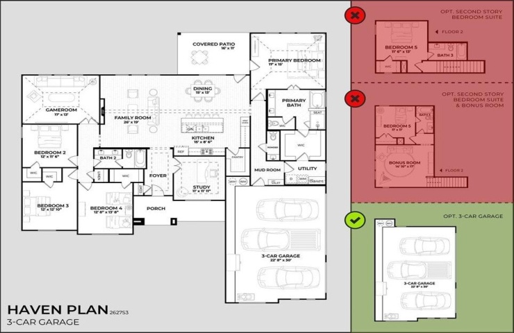
Property Description: MLS# 21159128 - Built by Dunhill Homes - Ready Now! ~ Discover a stunning single-family residence in the coveted Tuscan Estates subdivision. This newly constructed traditional home, completed in 2025, boasts 2,627 square feet of thoughtfully designed living space, featuring 4 primary bedrooms and 3 bathrooms (2 full, 1 half). The inviting layout includes 2 spacious living areas, an elegant eat-in kitchen with granite countertops, and decorative lighting that enhances the ambiance. Enjoy vaulted ceilings and an electric fireplace in the living room, creating a warm atmosphere. The home is equipped with central electric heating and cooling, ensuring year-round comfort. Flooring consists of a harmonious blend of carpet, tile, and wood, while the slab foundation and composition shingle roof provide durability. With a 3-car garage, this home meets all your needs. Located within the Waxahachie ISD, it offers access to top schools: Oliver Elementary, Howard Middle School, and Waxahachie High School.