4
3
2682
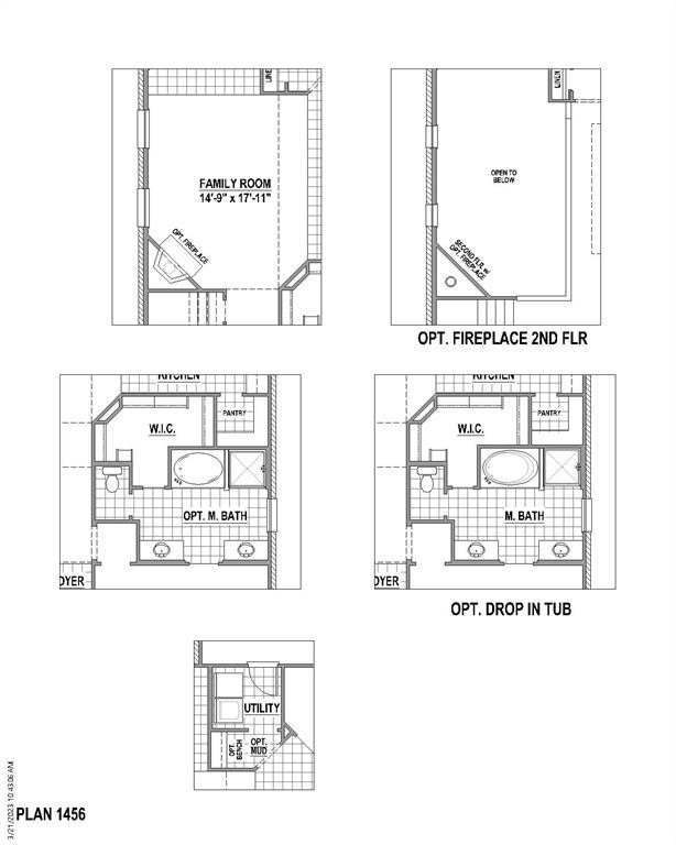
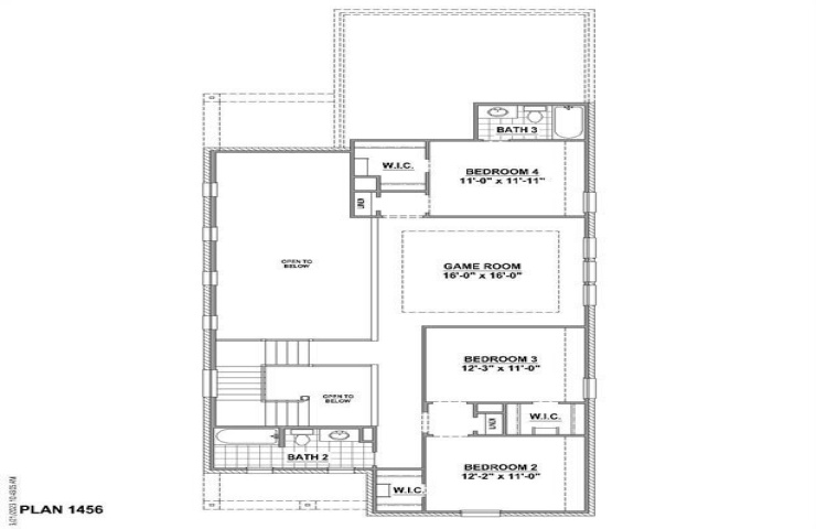
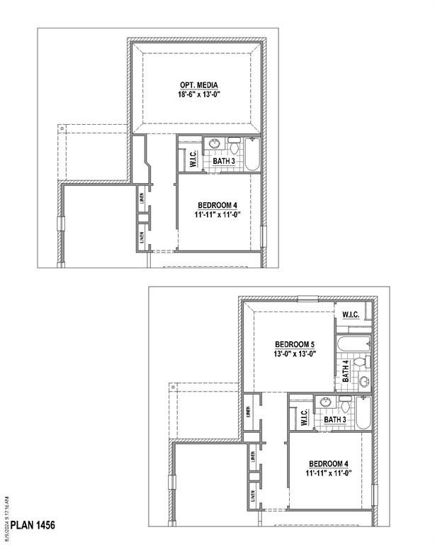
Property Description: This beautiful 4 bedroom, 3 bath home also incudes a powder room for guest convenience. It is nestled in the Wellington subdivision just North of Fort Worth, Texas. It features a large open floor plan open to the kitchen and living area. The kitchen is fully equipped with a large island, excellent appliances and walk-in pantry. It opens to the spacious living area with large windows for plenty of natural light. Adjacent to the living area is the dining room making the living space comfortable and accessible. Close by is a a dedicated study, perfect for a home office. The main bedroom is large enough for comfort and opens to the main bath complete with dual sinks and lots of storage space. There is a large main closet as well. Upstairs you will find three more bedrooms complete with a game room for fun and entertainment. There are two bathroom s on the second floor as well. The inside is quite spacious and opens to many outside opportunities. The community boasts of a walking track, neighborhood pool, community playground and grill. The Wellington subdivision is close to DFW airport, shopping and many dining venues. This lovely property will be available March 2026.