3
2
2155
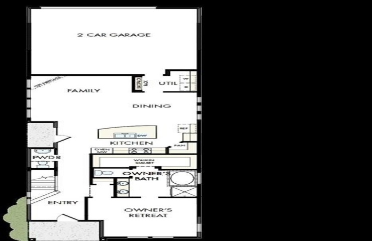
Property Description: FORNEY ISD! Light and bright, this two-story home offers a thoughtful layout designed for both comfort and flexibility. Featuring 3 bedrooms and 2.5 bathrooms, the home includes a serene owner’s retreat on the first floor with a spa-like bath highlighted by a relaxing drop-in tub. Upstairs, two additional bedrooms are complemented by a versatile retreat, perfect for a second living area or quiet escape. A chef-inspired kitchen anchors the open main living space, while the extended 2-car garage adds everyday convenience. Ready in May 2026, this home blends modern design with inviting spaces to enjoy now and in the future. Connect with the David Weekley Homes at Talia Team today to learn more about this exceptional new home for sale in Mesquite, Texas.