5
4
3711
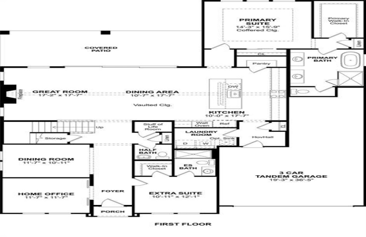
Property Description: Welcome to refined living in Lavon's thoughtfully planned community, Elevon. Discover where modern design and everyday comfort come together beautifully at 1173 Honey Falls Lane. This elegant single-story home showcases a meticulously crafted floorplan with spacious living areas, designer finishes, and flexible spaces that adapt to the way you live. From the moment you enter, the welcoming foyer leads into an expansive great room featuring a warming fireplace and filled with natural light—an inviting space anchored by soaring ceilings and an open flow into the dining area and chef-inspired kitchen. The kitchen serves as the heart of the home, featuring a large center island, ample cabinetry, and generous counter space—perfect for preparing meals, hosting gatherings, or enjoying quiet mornings at home. The open-concept design allows conversations to flow easily between the kitchen, dining, and living areas, creating a warm and connected atmosphere for everyday living. Privately situated, the primary suite offers a peaceful retreat with an ensuite spa-inspired bath, dual vanities, and an oversized walk-in closet designed for both comfort and convenience. Additional bedrooms provide flexibility for guests, family, or hobbies, while a dedicated home office or activity room offers the ideal setting for working from home or creating a flex space. Step through the multi-slide door to a 12'x27' covered patio designed for relaxed outdoor living—perfect for weekend barbecues, evening sunsets, or simply unwinding under the Texas sky. Life in Elevon offers more than just a beautiful home. Residents enjoy access to a vibrant master-planned community with parks, scenic walking trails, playgrounds, gathering spaces, and resort-style amenities designed to bring neighbors together and create lasting memories. Sophisticated yet welcoming, this home blends thoughtful architecture, modern comfort, and a desirable community setting—an exceptional place to call home.