3
2
1600
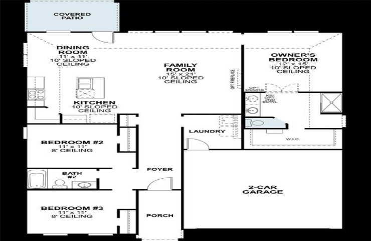
Property Description: Built by MI Homes, this new construction home at 113 Rockwood Lane offers 3 bedrooms, 2 full bathrooms, and an open-concept living area that seamlessly connects the main living spaces. As you enter from the covered porch, two bedrooms and a full bathroom are situated directly off the foyer. Continue into the open-concept living space, which creates an inviting atmosphere where the kitchen, dining, and living areas flow together naturally. You’ll love this impressive kitchen featuring granite countertops, a large island, and upper and lower cabinets. Enter your owner's suite through a private entry off the family room. The owner's bedroom features three large windows, an en-suite bathroom with dual sinks, a walk-in shower, and a spacious walk-in closet. This home maximizes functionality while maintaining comfortability throughout. With its combination of modern design elements, strategic room placement, and quality construction, it creates an ideal living environment. Schedule your visit today!