4
3
3881
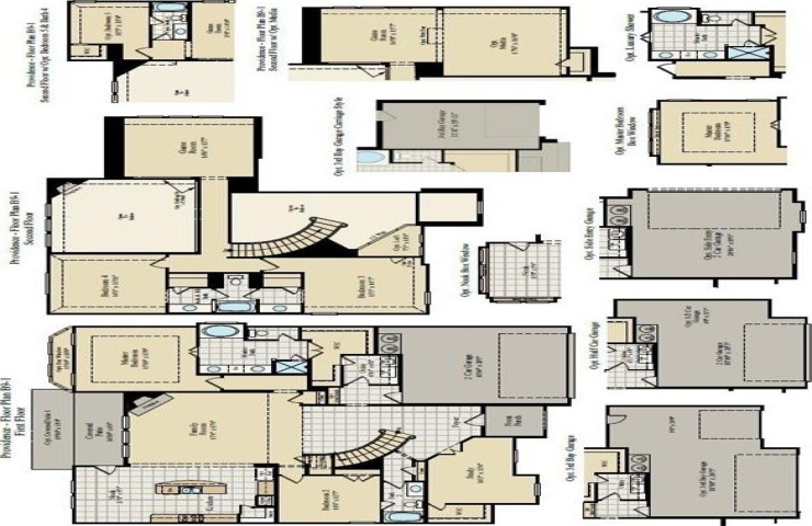
Property Description: MLS# 21162704 - Built by J Houston Homes - Ready Now! ~ NEW JOHN HOUSTON HOME IN BULL HIDE ESTATES IN LORENA ISD. Welcome to your dream home, this beautiful 2-story Providence home offers 4-bedrooms, 3.5 baths, a study, game room, and media room. As you enter the home you are in awe of the gorgeous spiral staircase that invites you into the spacious family room. Custom all-wood kitchen cabinets extend to the ceiling, under-mounted cabinet lighting, and a large extended island and breakfast nook, create an inviting atmosphere for cooking and entertaining. The primary suite is a true retreat, featuring a soaker tub, luxury shower, dual vanities, and a spacious primary closet. The 2nd floor offers 2 bedrooms, a Jack-n-Jill bathroom, and a large game room with a powder bath for all of your entertaining events with everyone. This is a must see home! AVAILABE NOW.