4
3
2585
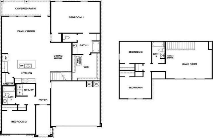
Property Description: Welcome to the Ozark, the perfect family home where comfort, style, and fun meet! This spacious two-story home offers 2,585 sq. ft. of living space, including 4 bedrooms and 3 bathrooms, designed with family living in mind. As you approach the home, you'll be greeted by a charming elongated front porch that leads into a welcoming foyer. Just off the foyer, you'll find a cozy secondary bedroom and bath, perfect for guests or as a private home office, plus a convenient tiled utility room. The heart of the home is the open, bright kitchen that flows seamlessly into the family living area. Imagine cooking in your gorgeous kitchen, complete with spacious quartz countertops, classic white 4x16 subway tile backsplash, stainless steel appliances, and a large kitchen island with a deep, single-bowl sink. The walk-in corner pantry provides plenty of space to store your essentials. The adjoining dining area is perfect for family meals and entertaining friends. Retreat to the main bedroom located privately at the back of the home. It features a luxurious ensuite with double vanity sinks, a huge walk-in closet, and a large walk-in shower with glossy white 10x14 subway tile surround. Upstairs, you'll find a family-friendly movie room, ideal for cozy nights with the kids, holiday movie marathons, or simply enjoying quality time together. The game room leads to two more guest bedrooms and a third full bathroom. Enjoy outdoor family gatherings with a covered rear patio (per plan) and a professionally landscaped yard. The Ozark also comes with smart home technology through our HOME IS CONNECTED base package, so you can control the lights, thermostat, and locks right from your phone. Ready to find your dream family home? Call today to schedule a tour of the Ozark and see how it’s designed for family fun and comfort!