3
2
1794
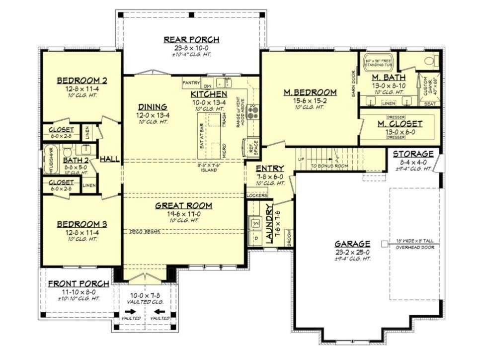
Property Description: Coming Soon! Impressive luxury modern farmhouse situated on 2 acres in Edgewood. Premier lot with trees! Large living room with vaulted beamed ceiling and open floor plan. Split bedrooms with primary suite separate from secondary bedrooms. Primary suite with dual vanities, separate bath and shower and more! Kitchen with large island with gorgeous quartz countertops. Highly desirable finish out planned, gorgeous beamed ceilings, cedar accents, modern fixtures, built ins and much, MUCH more! Large covered porches and impressive curb appeal! Edgewood ISD. Access to highways for commutes via HWY 80, and more! For more information reach out! NO HOA! NO MUD and NO PID. Plans features optional upstairs bonus room with full bath, flexible space for secondary living or 4th bedroom. Schedule appointment to view plans, design, etc with sales office.