4
2
2106
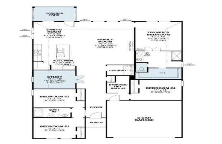
Property Description: Built by M-I Homes. Welcome to 7012 Winecup Lane located in Sanger, TX, which includes 4 bedrooms, 2 bathrooms, and an open-concept living space that seamlessly connects the main living areas, creating an inviting atmosphere for daily life and entertaining. This new construction home includes elevated finishes, a flexible layout, and enjoyment for years to come. From the welcoming front porch accentuated with brick and stone, step into an open-concept layout where the kitchen, dining area, and family room come together seamlessly. Warm tones in the luxury vinyl plank flooring guide you through the main living spaces. The kitchen features a central island and ample workspace, making it easy to move from daily routines to casual entertaining, while the adjacent family room provides a relaxed space to gather and unwind. Granite countertops and stainless steel appliances equip your culinary creations. A private study near the center of the home adds valuable flexibility, ideal for working from home, a hobby room, or a quiet retreat. The owner’s suite is thoughtfully positioned at the back of the home and includes a spacious bedroom, walk-in closet, and en-suite bath designed for comfort and convenience. Three secondary bedrooms are arranged toward the front and side of the home and share a full bath, offering flexibility for guests or additional living needs. A dedicated laundry room, covered patio for outdoor enjoyment, and a 2-car garage complete the layout. With its generous square footage, flexible study, and single-level design, this Quick Move-In home delivers a well-balanced lifestyle in the Lane Ranch community. Schedule your visit today!