4
3
3233
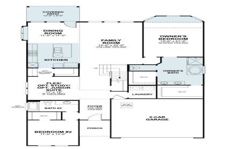
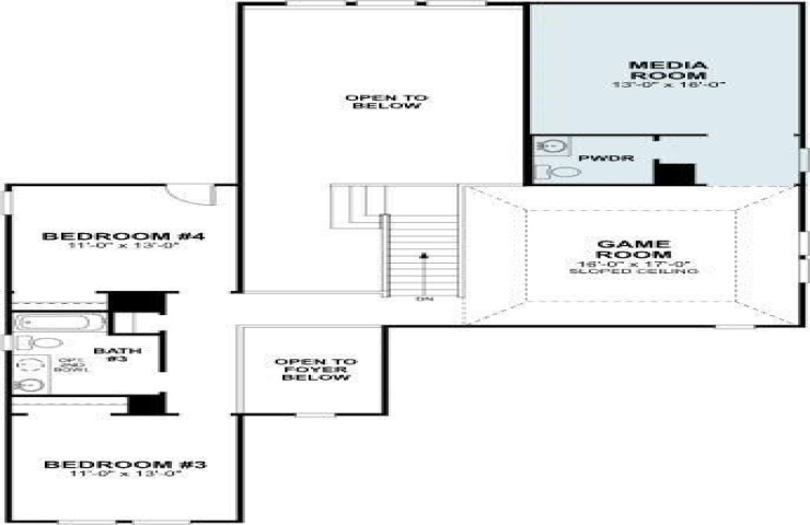
Property Description: Built by M-I Homes. Welcome to 1728 Monarch Haven Way in Oak Point, Texas. This beautifully designed new construction home offers an immaculately designed 2-story layout with an open-concept floorplan that flows naturally between the kitchen, dining, and living areas, making it ideal for both everyday living and entertaining guests. From the grand staircase to the tall ceilings and large windows, this home is nothing short of impressive. Key Features: • 4 bedrooms with a luxurious first-floor owner's suite • 3 full bathrooms plus a half bath • First-floor flex room • Upstairs game room and media room • Open-concept layout that maximizes space and light • Contemporary finishes and new construction quality • Built with attention to detail by M-I Homes Neighborhood & Location Benefits: • Located in a sought-after Oak Point community • Close to local parks and recreational areas for outdoor activities • Family-friendly neighborhood with well-kept streets and community appeal The owner's bedroom on the main floor provides a private corner for comfort and relaxation. Upstairs, three additional bedrooms offer flexible living space for family, guests, or home offices. All bathrooms feature quality finishes that complement the home's overall design. This home combines modern design, functional layouts, and high-quality construction. With energy-efficient systems and the assurance of builder warranties, it is move-in ready and designed for convenience and comfort. Don't miss the opportunity to own this exceptional Oak Point home that blends thoughtful design, quality craftsmanship, and an ideal location. Schedule your visit today!