4
3
2106
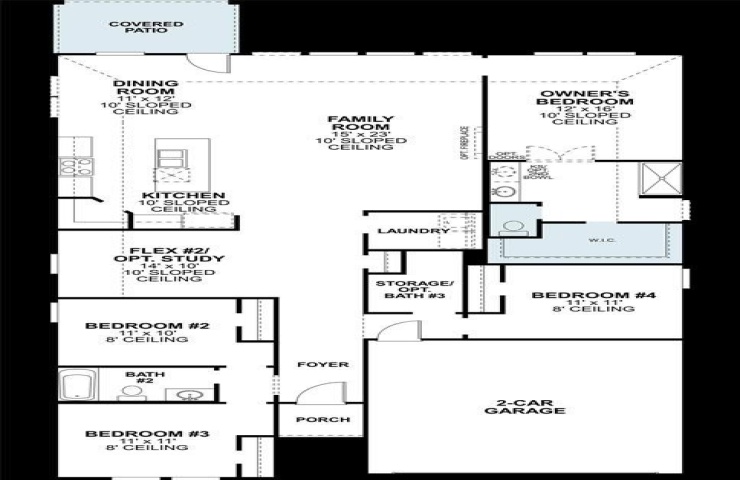
Property Description: Built by M-I Homes. Welcome to 1912 Quapaw Trail in Mesquite, TX, a thoughtfully designed single-story home offering 4 bedrooms and 2 full bathrooms—providing the space and flexibility you want with the ease of one-level living. From the covered front porch, step into an open-concept layout where the kitchen, dining area, and family room flow seamlessly together, creating an inviting space for everyday living and entertaining. The kitchen features a functional layout with generous counter space and direct sightlines into the main living areas, while the family room offers a comfortable place to gather and unwind. A flex space near the center of the home adds valuable versatility and can be used as a home office, study, or hobby room. The owner’s suite is privately positioned toward the back of the home and includes a spacious bedroom, a walk-in closet, and an en-suite bath designed for comfort and convenience. Three secondary bedrooms and a full bath are thoughtfully arranged to provide flexibility for guests or additional living needs. A covered patio extends the living space outdoors, while a dedicated laundry area and 2-car garage add everyday convenience. With its open layout, flexible living spaces, and single-level design, this Quick Move-In home offers a comfortable, well-balanced lifestyle in this reputable Mesquite community. Schedule your private visit today!