4
3
3396
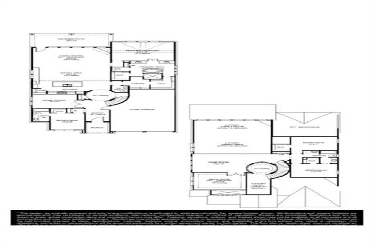
Property Description: This spacious design features a two-story rotunda entry. Home office with French doors across from curved staircase. Open kitchen offers corner walk-in pantry, a 5-burner gas cooktop, generous counter space and inviting island with built-in seating space. Two-story dining area opens to two-story family room with wall of windows and a wood mantel fireplace. First-floor primary suite includes bedroom with 13-foot ceiling and wall of windows. Primary bath includes dual vanities, garden tub, separate glass-enclosed shower and two large walk-in closets, one with access to utility room. First-floor guest suite. A game room, theater room with French doors and two secondary bedrooms are upstairs. Covered backyard patio. Three-car garage.