4
2
1732
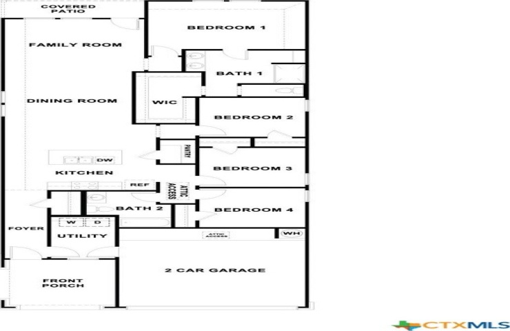
Property Description: MARCH ESTIMATED COMPLETION. EASY ACCESS TO I-35! Introducing the Tyler, one of our new floorplans available at Whisper South. This one-story home has 4 bedrooms, 2 bathrooms and a two-car garage across 1,732 square feet of comfortable living space. Our homes in Whisper South feature three-sided masonry exteriors. As you step inside the home from the covered front porch, you'll enter the long foyer. The utility room is located off the foyer and connects to the garage, perfect for a mud room. Moving further into the home, you'll find the kitchen, dining room, and family room. Designed as an open concept space that is perfect for entertaining and everyday living, you're sure to make many memories in this beautiful space. The kitchen features quartz countertops, stainless steel appliances, a pantry closet, and 36" upper cabinets. Enjoy the natural light from the side and rear windows plus the 8' to 9' sloped ceilings in this comfortable space. The primary bedroom is at the back of the home and includes an attached bathroom. This private ensuite is sure to become your oasis at the end of the day. Enjoy the walk-in shower, double vanity with marble counter tops, private door to the toilet area, and a walk-in closet in the bathroom. The secondary bedrooms and bathroom are located off the kitchen. Each bedroom has ample closet space with wood shelving and the secondary bathroom includes a shower/tub combination. Whether you use these rooms for children, a home office, or a guest room, there is plenty of space for everyone. The Tyler includes vinyl flooring throughout the common areas of the home, and carpet in the bedrooms. All our new homes feature a covered back patio, full sod, irrigation system in the front and back yard, and a 6' privacy fence around the back yard. This home includes our America's Smart Home base package, which includes the Video Front Doorbell , Front Door Deadbolt Lock, Home Hub, Thermostat, and Deako Smart Switches.