3
2
1581
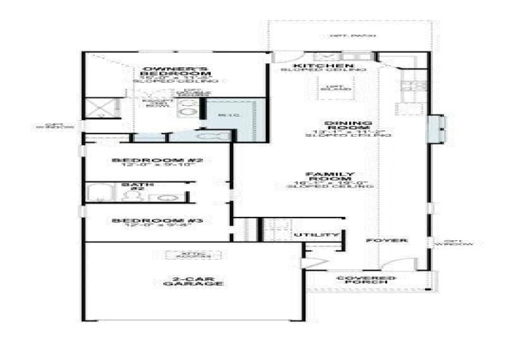
Property Description: Built by M-I Homes. Discover the ease of single-story living in this beautifully designed new home at 453 Pleasant Field Drive in Lavon, TX. Offering 3 bedrooms, and 2 full bathrooms, this thoughtfully laid-out home delivers comfort, functionality, and modern style in a layout that lives effortlessly day to day. Step inside from the welcoming covered front porch to an open-concept living space where the family room, dining area, and kitchen flow seamlessly together—perfect for everyday living and casual entertaining. The kitchen anchors the home with a central island, generous cabinet space, and direct views into the main living areas, making it easy to stay connected whether you’re hosting guests or enjoying a quiet evening in. The owner’s suite is privately positioned toward the back of the home and features a spacious bedroom, walk-in closet, and en-suite bath designed for relaxation and convenience. Two secondary bedrooms and a full bathroom are thoughtfully tucked away near the front of the home, offering flexibility for guests, a home office, or hobbies. Additional highlights include a 2-car garage, a dedicated utility space, and smart use of square footage throughout—making this home both practical and inviting. With quality craftsmanship and thoughtful design details throughout, this Quick Move-In home offers a seamless path to homeownership in a growing Lavon Community. About the Community: Welcome to Elevon, a master-planned community of new construction homes in Lavon, TX where you’ll enjoy a picturesque lifestyle with stunning amenities. Schedule a visit today!