3
2
1699
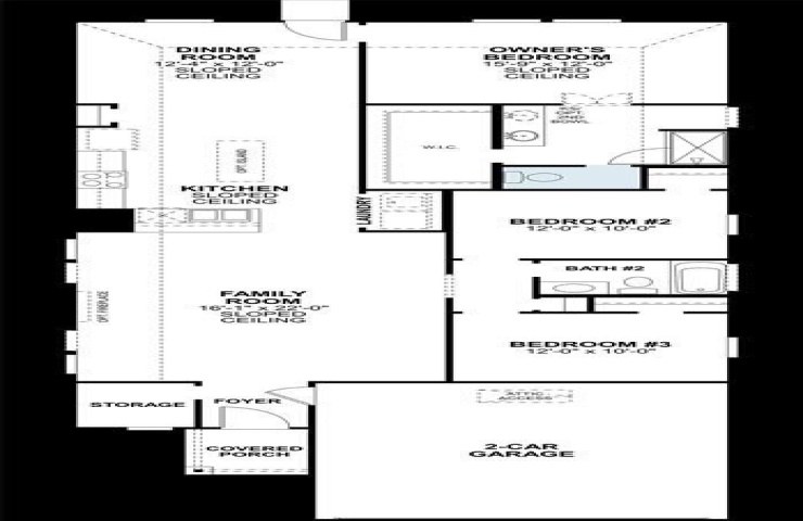
Property Description: Built by MI Homes. Discover this thoughtfully designed new construction home at 7513 Spicebush Drive in Ponder, Texas. Key features of this single-story home include 3 bedrooms, 2 full bathrooms, an open-concept floorplan connecting main living areas, and a 2-car garage. Step inside, and you will immediately notice the stylish and practical luxury vinyl plank throughout the first floor. The home's open-concept design creates a natural flow between the kitchen, dining, and living areas, making it ideal for both everyday living and entertaining. The owner's bedroom, which features an en-suite bathroom with a double-sink vanity and a walk-in closet, provides a quiet retreat, while the additional bedrooms offer flexibility for family, guests, or a home office. Located in a desirable Ponder community, this home combines quality construction, thoughtful design, and a prime location near parks and outdoor activities. As a new construction property, it includes contemporary finishes and builder warranty protection, ensuring move-in-ready convenience and long-term value. Schedule your visit today!