3
2
1935
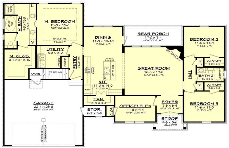
Property Description: New construction home in the up and coming subdivision Evergreen Estates! 3 bedrooms and 2 baths plus office. Open concept living area. Island kitchen with quartz countertops and custom cabinets. Gas range. Vinyl plank flooring throughout. Large patio. Tankless water heater. Foam insulation.