4
2
2546
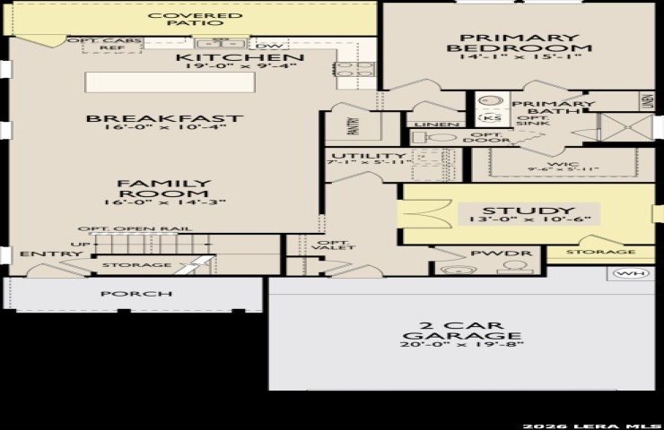
Property Description: This two-story home offers 4 bedrooms, 2.5 baths, and a functional layout ideal for modern living. The kitchen features a center island, walk-in pantry, built-in appliances, and pendant lighting, flowing seamlessly into the bright family room with views of the covered patio. A private study with doors and a downstairs primary suite provide comfort and flexibility, while the private primary bath includes a large shower, double vanities, and an oversized closet. Upstairs, three secondary bedrooms and a loft create plenty of space for relaxation or play. Additional highlights include vinyl flooring, ceiling fans, in-wall pest control, plumbing for a water softener, privacy fencing, and a sprinkler system, all reflecting the home's quality construction and thoughtful design. This home is part of our Serene Collection - designed to bring balance, calm, and open space into everyday life. Muted earth tones and natural textures work together to create rooms that breathe and moments that linger. Serene is about slowing down, soaking in the quiet, and making space for what truly matters, one peaceful moment at a time. This home is in Saddlebrook Ranch, a master-planned community in Schertz, offering easy access to I-35, shopping, dining, Randolph AFB, a pool, playground, and top-rated schools.