4
3
2680
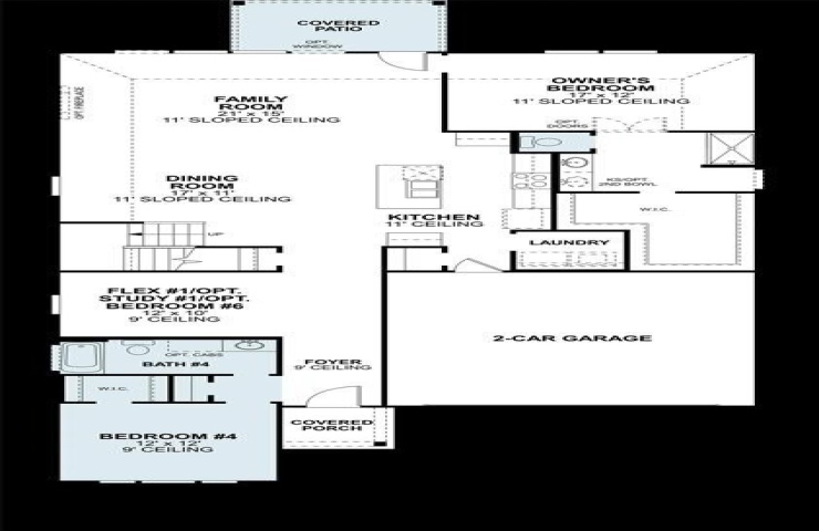
Property Description: Built by M-I Homes. Welcome to 148 Hudson Lane in Justin, TX, a thoughtfully designed two-story home offering spacious amount of square feet, 4 bedrooms, and 3 full bathrooms—with a layout that balances everyday comfort and flexible living space. The first floor features an open-concept design where the kitchen, dining area, and family room flow seamlessly together, creating a welcoming space for daily living and casual entertaining. The kitchen offers generous counter space and connects easily to the main living areas, while the adjacent family room provides a comfortable place to gather. A first-floor flex room adds versatility and can be used as a home office, study, or optional guest bedroom, with a nearby full bath for added convenience. The owner’s suite is privately located on the main level, featuring a spacious bedroom, walk-in closet, and an en-suite bath designed for relaxation. A covered patio extends the living space outdoors, making it easy to enjoy quiet mornings or evening get-togethers. Upstairs, secondary bedrooms are complemented by a central game room, offering additional space for recreation, hobbies, or casual hangouts. Thoughtful storage throughout and a 3-car garage add everyday functionality. With its flexible layout, private owner’s suite, and inviting gathering spaces, this Quick Move-In home offers a comfortable, well-rounded lifestyle in The Preserve community. Come take a Look!