4
4
3362
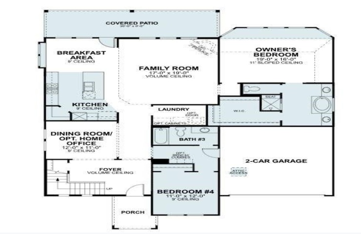
Property Description: Built by M-I Homes. Welcome to 3809 Water Lily Way in Celina, TX, a spacious 2-story home designed for flexible living, entertaining, and everyday comfort with 4 bedrooms, 4 full bathrooms, 2 half baths, and a 3-car garage. Modern design finishes throughout further elevate this design and you're sure to adore the plethora of upgrades including the gourmet kitchen layout, the extended covered patio, the luxurious owner's suite, the upstairs media room, and more! The first floor features an open-concept layout where the kitchen, breakfast area, and family room flow together seamlessly, creating an inviting space for daily living and gathering. A dedicated dining room near the front of the home offers flexibility and can also serve as a home office or flex space, while a first-floor secondary bedroom with a nearby full bath is ideal for guests or multigenerational living. The owner’s suite is privately located on the main level, complete with an extended bay window and a deluxe owner's bathroom. Elegant tile selections bring this serene space to life and you'll appreciate the daily convenience of dual sinks plus a spacious walk-in closet. A grand staircase at the front of the home escorts you upstairs, where you’ll find additional bedrooms, full baths, and a central game room that creates a perfect hub for entertainment or casual hangouts. A separate media room offers the ideal setup for movie nights or game days, while open-to-below views add architectural interest and enhance the home’s airy feel. Additional highlights include an extended covered patio for outdoor enjoyment, generous storage throughout, and a 3-car garage. With its thoughtful layout, multiple gathering spaces, and balance of shared and private areas, this Quick Move-In home offers a comfortable, well-rounded lifestyle in the Lilyana community. Schedule your visit today!