4
2
2029
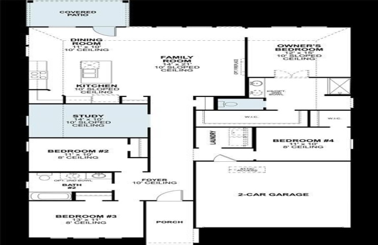
Property Description: Welcome to 3805 Birch Lane in Argyle, TX, a thoughtfully designed single-story home offering 4 bedrooms, and 2 full bathrooms—perfect for comfortable living with flexible space all on one level. From the covered front porch, step into an inviting layout where the kitchen, dining area, and family room connect seamlessly, creating a warm and functional space for everyday living and entertaining. The kitchen features generous counter space and a practical layout that keeps you connected to the main living areas, while the adjacent family room provides a relaxed place to gather. A dedicated study near the center of the home adds valuable flexibility and works well as a home office, reading room, or hobby space. The owner’s suite is privately positioned toward the back of the home, offering a spacious bedroom, walk-in closet, and an en-suite bath designed for everyday comfort. Three secondary bedrooms and a full bathroom are thoughtfully arranged to provide privacy and versatility for guests or additional living needs. A covered patio extends the living space outdoors, while a dedicated laundry area and 2-car garage add everyday convenience. With its open-concept design, flexible study, and single-level living, this Quick Move-In home offers a comfortable, well-balanced lifestyle in the Sagebrook community. Schedule a visit today!