5
4
3749
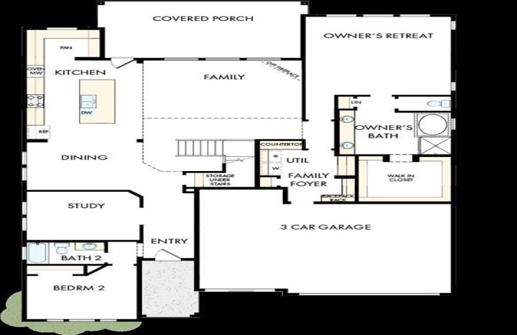
Property Description: Get the most out of each day with the combination of classic appeal and modern comfort that make The Redfern by David Weekley Homes an amazing new home! A sprawling covered back porch adds fantastic outdoor leisure space where you can enjoy quiet evenings and fun-filled weekends. Start each day rested and refreshed in the Owner’s Retreat, which includes a large walk-in closet and a luxurious en suite bathroom. A family foyer and 3-car garage brings convenience to your daily routine. Three secondary bedrooms, each with their own full bathroom, are located on both floors to provide ample privacy, personal space, and room to grow. Craft the home office, game room, or special-purpose rooms uniquely suited to your family in the upstairs retreat, media room and downstairs study. An oversized corner pantry, much like a full butlers pantry and a full-function island, and expansive view of the main level contribute to the culinary layout of the contemporary kitchen. Big, energy-efficient windows and ceilings that extend to the second floor help your interior design style shine in the natural light of the open family room a corner fireplace in the family room offers many options for holiday decorating. Call the David Weekley Homes team at The Ridge at Northlake to learn about the industry-leading warranty and energy-efficient features included with this new home for sale in Northlake, Texas!