4
2
2081
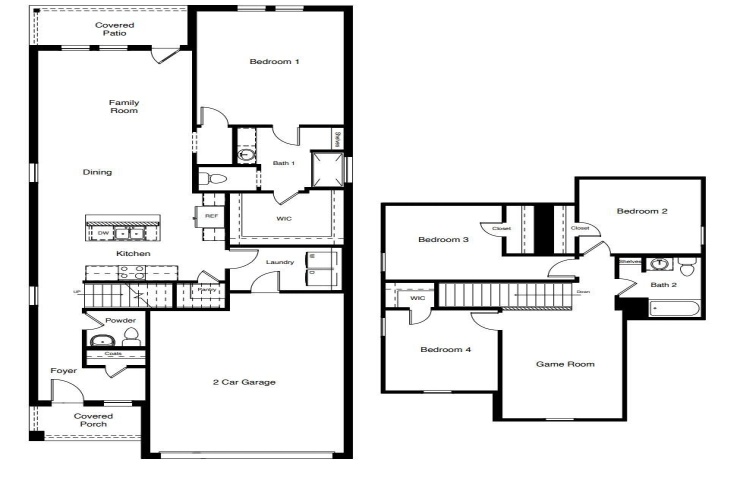
Property Description: This floorplan will only be built once for this 1 home. We will not be activating it on our website for now. The Hannah rendering is on the shared file LINK all the floor plan pics, this one will only have the rendering, no interior. As for the description do you usually copy it form the website or do you need something shorter? If so here is what I would be using if we eventually activate it our website: "The Hannah is one of our one-story floor plans featured in the Terra Vista community in Lubbock, TX. Offering options for both modern farmhouse and classic brick exteriors, the Hannah is sure to turn heads. Step inside this 4-bedroom, 2.5-bathroom home and find 2,081 square feet of elevated modern living. The Hannah features an open concept kitchen and family room area, allowing you to always be close to the action. The kitchen features shaker style cabinets complete with stainless steel appliances, modern tile backsplash, and quartz countertops to add an extra level of charm to your space. The designated dining area is situated beside the kitchen, ideal for cheerful gatherings and daily meals shared with loved ones. The spacious family room is the perfect spot for entertaining and everyday enjoyment, sure to be the perfect spot for the heart of your home. Each bedroom features plush carpeted floors and plenty of space for everyone in your household. The primary bedroom features its own attached bathroom, complete with quartz vanity tops, a luxurious shower, and a walk-in closet, perfect for extra privacy and serenity. Step outside and you'll find your backyard oasis, complete with a covered patio. Whether you're grilling on warm summer nights, running around with the kids, or playing fetch with the dog, you'll have the perfect spot to do so. Completion Date: 5/28/2026. Images are representative of plan and may vary as built.