4
3
2552
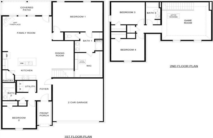
Property Description: New! Beautiful two story floor plan! Four bedrooms, three full baths, with covered patio and nice game room. Home includes, island kitchen, granite counters throughout, LED lighting, full sprinkler system, professionally engineered post tension foundation, and much more! Welcome to Fireside by the Lake! Conveniently located just 2 miles from Interstate 30, this beautiful community gets its name due to its proximity of Lake Ray Hubbard. Here at Fireside, you can experience the convenience of easy access highways, while enjoying a serene and beautiful location outside of the city. Fireside by the Lake is also nestled within the highly regarded Garland ISD. Don’t miss out on this opportunity, schedule a tour of Fireside by the Lake today and discover why it’s the perfect place to call home!