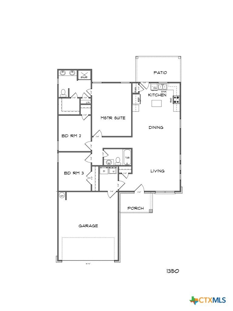
3
2
1505
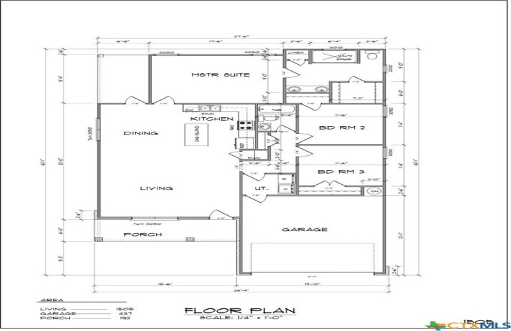
Property Description: Welcome to The Pathfinder - 1505 Sq Ft of Purpose-Driven Design Crafted by Summit Valor Homes, The Pathfinder leads with intention. This 3-bedroom, 2-bath home features an open-concept living and dining space, a spacious kitchen with island seating, and a private master suite that offers the perfect retreat. With a split floor plan, dedicated utility room, and two-car garage, The Pathfinder delivers modern comfort wrapped in timeless Texas strength. Built with honor. Crafted for life.