3
2
2200
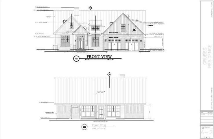
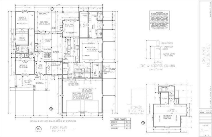
Property Description: Award-winning builder Grubbs Construction presents a proposed new construction with plans ready to start in the heart of Horseshoe Bay. Thoughtfully planned and designed for efficiency, this single-story home offers approximately 2,200 sq. ft. with 3 bedrooms, 2 baths with an open-concept layout ideal for today's Hill Country lifestyle. Features include vaulted and beamed ceilings, a fireplace, walk-in pantry, mudroom/utility room, dedicated study/office and an oversized covered patio for outdoor enjoyment. Two-car garage with option to add a second story above the garage for future expansion. Centrally located for convenience, this home blends cost-effective design, quality craftsmanship, flexibility and comfort. Engineered architectural floor plans, survey and topography are included in the sales price.