3
2
1455
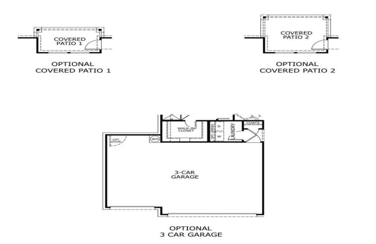
Property Description: MLS# 21177386 - Built by Risewell Homes - Mar 2026 completion! ~ The 1455 floor plan is a smart and stylish single-story layout featuring 3 bedrooms, 2 bathrooms, and an open-concept design that makes the most of every square foot. Enjoy a spacious kitchen that flows into the dining and living areas perfect for everyday living and entertaining. This plan offers comfort, functionality, and charm all in one.