3
2
1730
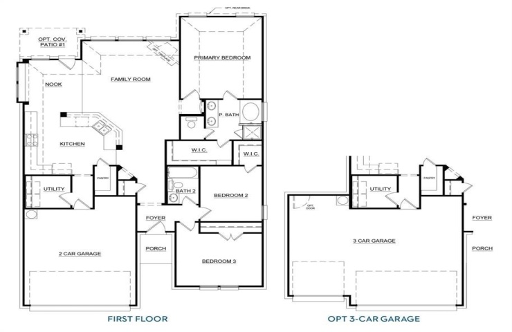
Property Description: MLS# 21177395 - Built by Risewell Homes - Mar 2026 completion! ~ Settle into this cozy single-story plan prioritizing privacy and comfort. A spacious kitchen with ample storage, stainless steel appliances and a large island awaits. The breakfast nook leads to an optional covered patio. The family room offers warmth with an optional fireplace. The secluded primary suite features vaulted ceilings and a luxurious ensuite bathroom. Two additional bedrooms share a full bathroom. The direct-access garage adds convenience.