5
4
4800
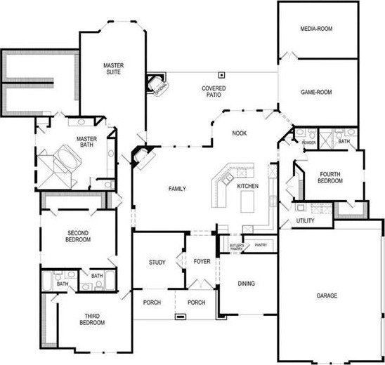
Property Description: MLS# 21178738 - Built by Gallery Custom Homes - Ready Now! ~ Experience luxurious one-story living in this stunning 4,807 sq ft home, perfectly situated on an oversized lot. Featuring four spacious bedrooms, each with a private bath, plus an additional powder room, this residence offers comfort and privacy for all. The expansive family room, kitchen, and dining nook open to a large covered patio through two sets of multi-sliding doors, ideal for indoor-outdoor entertaining. Enjoy a massive four-car garage, a dedicated study, game room, and media room. Don’t miss your chance—schedule your tour today!