4
3
2903
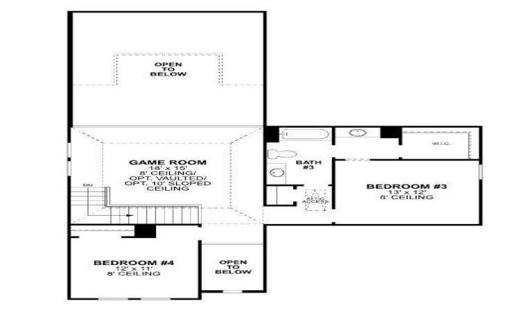
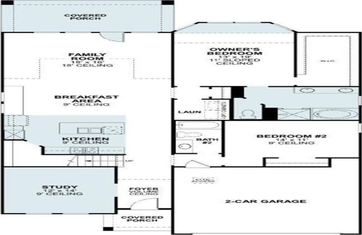
Property Description: Discover this thoughtfully designed home at 1324 Sherlynn Court in Celina, Texas. With space across two levels, this home offers comfort, flexibility, and easy access to the main living areas. Key Features: • 4 bedrooms with the owner's bedroom on the main level • 3 full bathrooms • Open concept kitchen, dining, and family room • Modern interior selections • Front-loading 2-car garage The layout blends spacious gathering areas with private bedroom zones, creating a balanced home that works for everyday living and special occasions. Upstairs bedrooms offer room for family, guests, or hobbies while the main level provides a comfortable daily flow. The Celina setting places homeowners close to parks, recreation, and community amenities while maintaining the peaceful feel the area is known for. Schedule your visit today.