4
3
3233
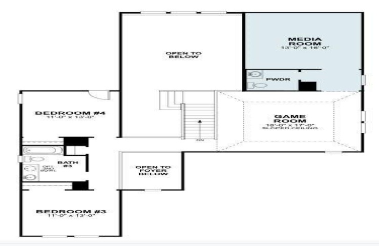
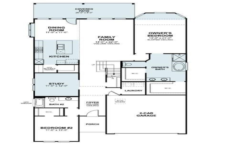
Property Description: Built by MI Homes, this stunning new construction home at 6372 Foxglove Lane in McKinney, Texas, combines modern design with functional layouts for today's lifestyle with 4 bedrooms, and 3.5 bathrooms. Key features include a gourmet Kitchen, a game room, a media Room, and an extended covered patio. This home’s thoughtfully designed floorplan emphasizes both comfort and functionality. The open-concept layout allows for natural light to flow throughout the kitchen, dining area, and family room, creating a welcoming space for both daily life and entertaining. Your first-floor owner's suite provides convenience and a private retreat, featuring an en-suite bathroom with a double-sink vanity, a separate tub and shower, and two walk-in closets. The additional bedrooms offer flexibility for family, guests, or home office space. Experience the perfect combination of modern design, thoughtful layout, and a prime McKinney location with this exceptional new construction home. Schedule your visit today!