0
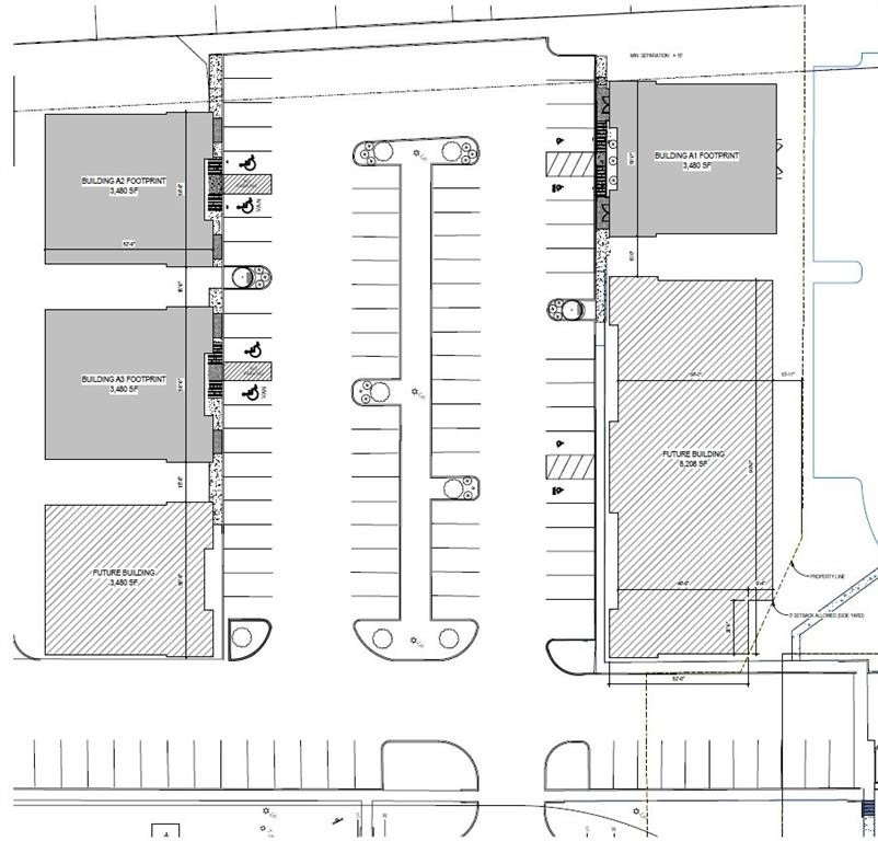
Property Description: Retail or Office Build-to-Suit - For Lease. $24 per sf per yr + NNN. Delivery Summer 2027. Total of 3 buildings available for lease or purchase: Option 1 - Full Building - 3,480 sf (listed separately). Option 2 - Half Building - 1,740 sf. Zoning C-1. Parking: 99 Total. Traffic Counts: 34,726 VPD (TxDot '24). Contact agent for more details!