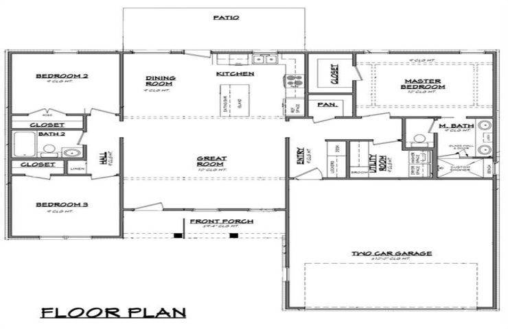
3
2
1410
Property Description: Welcome to this beautifully crafted new construction home offering the perfect blend of style, comfort, and efficiency. This 3-bedroom, 2-bathroom gem features high-end finishes throughout, including granite countertops, vinyl plank flooring, and energy-efficient LED lighting. Enjoy year-round comfort with spray foam insulation, and bask in the open, airy feel of the vaulted ceiling in the main living area. The spacious 2-car garage provides plenty of room for vehicles and storage. Located in a desirable neighborhood with curb and gutter frontage, this home offers city water and sewer and is just steps away from a beautiful city park—less than one block away. The privacy fence surrounding the backyard creates a perfect space for relaxing, entertaining, or letting kids and pets play safely.