5
4
3417
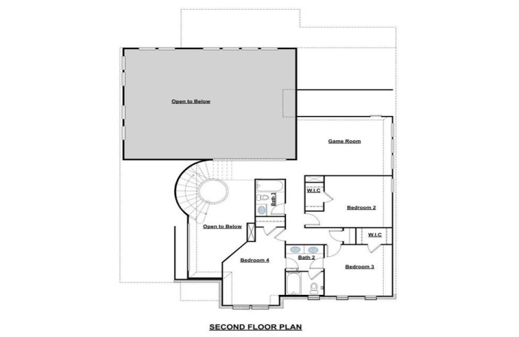
Property Description: From our grand Presidential Series, this stunning 3,417 sf Two-Story home is GFO Home’s highly sought-after Harrison Floor Plan- offering 5 Bedrooms, 4.5 Bathrooms, and a spacious 2-car side swing Garage, on a sprawling 100' FT homesite in the beautiful Polo Ridge Community. On the main floor, this home features highlights like a Private Study, a Guest Suite with full ensuite Bathroom, an Open Concept Family Room with soaring 20’ ft Vaulted Ceilings, 2-Story Stacked Windows, and 60in Electric Fireplace, as well as a spacious Covered Patio leading out to the Private Backyard. You’ll also enjoy a Gourmet Chef’s Kitchen featuring a large Center Island, Walk-in Pantry, and attached Breakfast Room. Relax and unwind in the luxurious Primary Suite with Spa-Inspired Primary Bathroom featuring a designer Free-Standing Tub, Frameless Glass Walk-In Shower, and Oversized Walk-In Closet. Up the grand curved staircase, you’ll find the Game Room for endless fun, and 3 more Bedrooms with 2 more full Bathrooms. Discover added functionality with a Laundry Room and Powder Bathroom directly off the garage entrance. Experience high-end living at its finest with GFO Home’s Harrison floor plan in the ultimate Dallas Destination, Polo Ridge. In this picturesque and scenic community, you’ll enjoy stunning sunsets, gorgeous views, and beautiful surrounding greenery. Plus amazing community features like hiking & biking trails, parks, playgrounds, and a brand-new community amenity center and community pool coming soon! Zoned to Forney ISD. Estimated Completion July 2026.